Изначально несъемная опалубка рассматривалась всего лишь как способ сэкономить немного времени на строительстве монолитных фундаментов и других бетонных конструкций. Но идея оказалась перспективной, быстро завоевала популярность и хорошие отзывы, особенно когда начали применяться долговечные материалы вроде пенополистирола.


Особенности
С использованием несъемных конструкций из пенополистирола отпала необходимость тратить время и силы на демонтаж форм после застывания бетона. Теперь опалубка стала частью фундамента, отчего основание постройки только выиграло.
Достоинства изделий из пенополистирола:
1. Малый вес при достаточной жесткости плит. Сохранение формы обеспечивают внутренние металлические или те же полистирольные перемычки, если модули изготавливаются выпиливанием из цельных блоков.
2. Простота в изготовлении сложных геометрических форм под заливку, плюс – удобная сборка за счет пазогребневого замка.
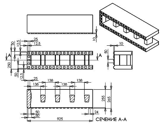
3. Это дополнительная двусторонняя теплоизоляция общей мощностью около 100 мм. Она уменьшает и температурное влияние окружающей среды на бетон.
4. Долговечность и неподверженность гниению.
Отзывы и заявления производителей о том, что пенопласты хороши своей атмосферостойкостью, в данном случае неуместны. Ведь для работы с бетоном все равно придется подгадывать нормальные погодные условия. А в дальнейшей эксплуатации пенополистирольные плиты надежно защитит финишная отделка. Куда важнее устойчивость к щелочной среде раствора и низкое водопоглощение. В отличие от других видов конструкций ППС не тянет влагу из бетона.
Несъемной опалубке из пенополистирола для фундамента нужна последующая облицовка. Но и голый бетон на фасаде никто не оставляет без декоративной отделки. Так что этот «минус» можно просто отнести к задачам, которые не решаются выбором каркаса.
Отделывать идеально ровную наружную поверхность плит будет легче, чем бетон. Но здесь нужно учитывать хрупкость пенопласта, так что облицовку придется выбирать относительно легкую. Для этой цели подойдет штукатурка, а лучше всего спрятать цоколь под вентилируемым фасадом.


Характеристики
По своей конструкции может быть разъемной и неразъемной. Первая отличается меньшей стоимостью (на 10-15%), а вторая, по отзывам, лучше сохраняет форму и постоянный размер фундамента. Высота блоков составляет 25 см, так что для заливки потребуется установить опалубку минимум в 2-3 ряда. Длина модулей колеблется в пределах 1-1,5 м, но наиболее распространенным габаритом является 1,2 м.
Основные характеристики:
| Отклонение размеров по длине, мм:
1 класс 2 класс 3 класс |
0,8 1,5 по договоренности |
| Плотность пенополистирола, кг/м3 | 27 – 30 или 45 – 50 |
| Вес 1 блока | 1,5 – 2 кг |
| Марка прочности | М20 – М25 |
| Коэффициент теплопроводности | 0,08 – 0,36 Вт/м×°С |
| Морозостойкость | F300 |
| Суточное влагопоглощение | 0,1 % |
| Паропроницаемость | 0,032 мг/м×ч×Па |
| Максимальная рабочая температура | +90 °С |
| Температура самовозгорания | +490 °С |
| Класс горючести | Г1 – Г2 |
| Шумоизоляция | 49 – 53 дБ |
Несмотря на негорючесть пенополистирола, высоких температур он не переносит. Поэтому при проектировании и строительстве фундамента следует предусмотреть прокладку инженерных систем так, чтобы несъемная опалубка не соприкасалась с горячими поверхностями и не оплавилась.
Пенопласт не является абсолютно безвредным материалом, так как в процессе эксплуатации выделяет опасный токсин – стирол. Сертифицированная продукция отличается его минимальным содержанием (0,5 %), что соответствует установленным предельным нормам. Поэтому при строительстве жилых зданий наличие сертификата качества на блоки следует проверять. А чтобы избежать скапливания токсических веществ в цоколе дома, достаточно заранее продумать эффективную приточно-вытяжную вентиляцию подвальных помещений.


Нюансы применения
Поскольку опалубка предназначается для облегчения труда, использовать пенополистирольные формы уместно в частном малоэтажном строительстве. Работа с ними продвигается куда легче и быстрее, поэтому если помощников на участке немного, а на специнструмент тратиться не хочется, несъемные блоки будут кстати.
Ограничение по срокам сдачи объекта – тоже показание к применению конструкций из пенополистирола. Использование пенопласта на стадии заливки фундамента позволит в дальнейшем сократить затраты на теплоизоляцию.
По отзывам строителей, такая опалубка достаточно хрупкая и иногда может сильно крошиться. Это следует учитывать и при разгрузке, и во время заливки бетонного основания.


Отзывы застройщиков


«Много читал отзывов о том, что в монолитном доме, отлитом в пенопластовой опалубке, невозможно дышать. Согласен – недаром ведь производители массово кинулись оснащать свои блоки хитрыми системами аэрации. Но для фундамента такое свойство пенополистирола я проблемой не считаю, некоторая герметичность ему даже на пользу. А для строительства стен можно подыскать и «дышащие» аналоги – их сегодня из чего только ни делают».
Станислав Лемехов, Москва.


«Совет тем, кто будет делать заливку пенопластовой системы впервые: соблюдайте осторожность при работе. Во-первых, бетон для основания придется покупать на щебне размером помельче, чтобы не «травмировать» оболочку. Во-вторых, наполнять лучше вручную или подавать раствор по лотку самотеком, а не давать залп из бетононасоса – такого напора пенополистирол может не выдержать».
Алексей Щербина, Волгоград.


«Мы поначалу пожалели, что связались с этой продукцией. Первый ряд под фундамент выставляли долго и нудно, не выпуская уровня из рук – блоки съезжают от малейшего неосторожного движения, кое-где пришлось подложить щепки. Но когда нижний ряд выложили и обвязали по кругу, дальше процесс пошел веселее. То ли мы уже подстроились, то ли действительно вся проблема была в первой линии кладки. Мое мнение – работать с такой опалубкой можно, но проверять установку придется постоянно».
Игорь, Воронеж.


«Я у себя на участке испытывал эту технологию. То, что блоки легкие и их можно свободно перетаскать, собрать самому – это еще половина удовольствия. Гораздо больше мне понравились подготовленные пазы под продольную арматуру. Конечно, такое количество всяких стержней-перегородок внутри мешает нормально уложить бетон. Пришлось орудовать вибратором, зато сделал все быстро».
Евгений, Самара.
Стоимость
Стандартные блоки для строительства основания могут быть дополнительно усилены за счет большей толщины стенок, отчего увеличиваются их теплоизоляционные характеристики и цена.
| Тип | Стоимость, руб/шт |
| Стандартный, 1200 мм | 495 – 760 |
| Усиленный, 1200 мм | 1110 |
| Угловой 90° | 570 – 780 |
| Угловой 135° | 500 |
| Торцевой | 770 – 780 |
| Поворотный | 800 |
| Заглушка, 150 мм | 20 – 25 |
| Перемычка, 213 мм | 8 – 10 |
По сравнению с традиционной из досок или фанеры опалубка, изготовленная из пенополистирола, обходится дороже. Но она позволяет уменьшить трудоемкость и сроки проведения бетонных работ, а также сэкономить на утеплении цокольной части дома.