Тротуарная плитка на сегодняшний день – один из наиболее популярных отделочных материалов. Применяется в качестве облицовки всевозможных площадок, дорожек, отмосток. В силу своей дороговизны распространенность ее применения снижается. Отсюда возникает потребность в изготовлении своими руками. Для этого используют устройство под названием вибростол.


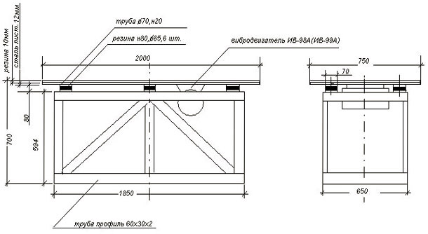
Схема вибростола
Вибрационный стол – конструкция, предназначенная для изготовления изделий из бетона и других высокопрочных растворов, в том числе для тротуарной плитки. Состоит из поддона, закрепленного на основе пружинными соединениями, и вибродвигателя, приводящего устройство в движение. В процессе производства тротуарной плитки под действием вибрации из форм выгоняются частички воздуха и пустоты, обеспечивая тем самым надлежащее качество и надежность материалу.
По назначению выделяют две категории вибростолов:
1. для заливки с формами под раствор, где происходит формирование изделий;
2. для выбивки – вибростол, оснащенный механизмом, помогающим доставать готовый материал путем переворачивания.


При самостоятельном использовании подойдет и тот и другой вид. Отличаться они также могут наличием или отсутствием пружин. Второй вариант предпочтительнее в силу большего срока службы.
Самодельный вибростол подразумевает множество конструктивных решений и сооружается каждым мастером под собственную руку. Главным условием успешного приготовления является идеально ровная поверхность вибростола и равномерность подачи вибрации. В противном случае плитка получится неровной, обладающей недостаточной прочностью.
В инструкцию по сборке вибростола, как правило, входят следующие материалы:
- железные трубы или уголки, подойдет и швеллерный профиль;
- металлическая или деревянная столешница;
- электрический двигатель;
- стальные пружины;
- потенциометр – служит для регулировки частоты вибрации, устанавливается в случаях, если планируется работа с растворами разных видов;
- болты для фиксации.


Как сделать вибростол своими силами
Инструкция по изготовлению вибростола подразумевает несколько последовательных этапов:
1. Проектирование. На этапе планирования составить предварительный чертеж стола не составит особых трудностей. В схеме грамотно указываются подходящие габариты, все материалы. Стоит учесть: чем больше площадь поверхности вибростола, тем мощность используемого двигателя должна быть выше.
2. Строго по чертежу формируется основание из металлического угла или швеллера. Стандартный размер 70х70 см.
3. Из труб привариваются ножки. Высота подбирается индивидуально, главное условие – это удобство в эксплуатации и достаточное расстояние от двигателя до земли. Чтобы сделать конструкцию устойчивой, приделываются металлические пластины, бетонируемые раствором. Если вибростол предполагается передвигать, то бетонирование не требуется.


4. С каждой стороны с помощью сварки в специальные стаканы из отрезков труб прикрепляются пружины в общем количестве 6 штук. Лучше всех по инструкции подойдут пружины от мопеда, разрезанные на две. Они и будут обеспечивать необходимую вибрацию при работе двигателя. Следует помнить, что пружины и стаканы под них стоит выбирать соответствующего размера. В противном случае поверхность потеряет возможность вибрировать и будет раскачиваться из стороны в сторону, нарушая всю технологию производства.
5. Поверх пружин накладывается столешница из железа толщиной не менее 8 мм либо из дерева не менее 12 мм, обделанная металлическим углом для придания большей жесткости и предотвращения падения формы во время вибрации.
6. В соответствии с чертежом строго посередине столешницы сплошным швом приваривается швеллер размером 30 см. Снизу просверливаются отверстия в нем по шаблону крепления вибромотора и болтами прикручивается сам электродвигатель.
7. На поверхность листа укладываются формы. Конструкция готова к эксплуатации.


Формы для вибростола можно приобрести или изготовить самому. Для этого понадобятся деревянные бруски и минимум фантазии. Если емкости небольшие по размеру, то на столе их размещают по несколько штук за раз.
Важно: все сварочные швы при сборке вибростола должны быть сплошными, в противном случае произойдет разрыв во время вибрации.
Советы и рекомендации
От размера вибростола прямопропорционально зависит широта ассортимента производимых материалов. Высоту можно сделать в пределах от 60 до 80 см, меньший показатель, в свою очередь, облегчит заливку раствора и выемку готовой тротуарной плитки. Рекомендуется выбирать для основания фанеру, так как сталь снижает вибрацию. Для уменьшения уровня шума бортики следует сделать тоже из дерева.
Наиболее подходящая схема для домашнего использования включает вибратор средней мощности с оптимальным показателем 1,5 кВт. Двигатель для вибростола своими руками лучше подбирать трехфазный по питанию 380В, обязательно оборудованный системой автоматического отключения питания при перегрузках или коротком замыкании.
Обязательное условие в технологии изготовления – выбранный двигатель должен быть разбалансирован. Таким образом, обеспечивается вертикальная вибрация, которая передается столешнице и стоящим на ней формам. Существуют устройства с горизонтальной вибрацией, но они несколько сложнее в комплектации.
Некоторые умельцы приспосабливают для вибростола двигатель от старой стиральной машины, но его использование нецелесообразно в силу недолговечности работы, особенно при интенсивном производстве плитки. Такого двигателя хватит от силы на 20-30 оборотов. Поэтому лучше приобрести вибратор отдельно.
Наиболее зарекомендовал себя двигатель ИВ-99. Стоимость его колеблется в районе 6000 рублей. Существует в двух разновидностях ИВ-99Б и ИВ-99Е. Первый – трехфазный вибродвигатель с напряжением 380В, второй – однофазный вибромотор с напряжением 220В.
При частом использовании вибростола обязательно требуется контроль надежности крепежных элементов вибратора, протяжек болтов, электрокабельных соединений. Важно подобрать оптимальное сечение силового кабеля ввиду обеспечения достаточного напряжения для продления срока службы.